صنایع آلومینیوم آبسکون
سیستم کرتین وال
abescon-logo

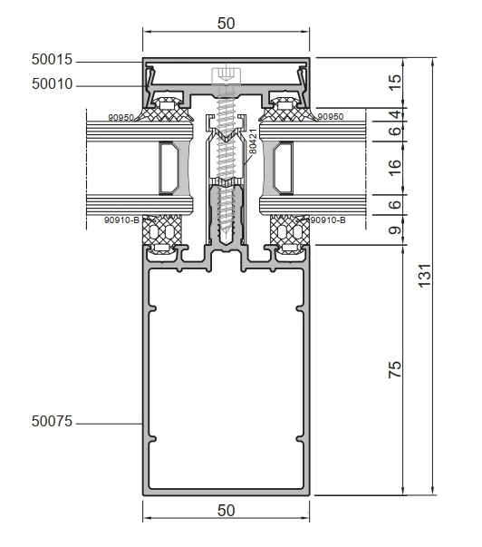
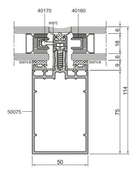
سیستم کرتین وال استیک ترمال بریک سیستم کرتین وال استیک ترمال بریک سیستم کرتین وال استیک ترمال بریک سیستم کرتین وال استیک ترمال بریک
abescon-1663487456-Abescon-Curtainwall-CW50-G.webp

CW50-G

برند:   ABESCON


نام محصول:

سیستم کرتین وال استیک ترمال بریک

مزایا:


  • لینک دانلود کاتالوگ
  • 1663487558-Abescon-Stick-Thermal-Break-Curtainwall-System-CW50-G-Catalogue.pdf   1663487558-Abescon-Stick-Thermal-Break-Curtainwall-System-CW50-G-Catalogue.pdf  دانلود